Q941F电动法兰球阀概述:
Q941F电动法兰球阀采用一体化结构,有输入控制信号(4~20mA DC或1~5V DC)及单相电源即可控制运转,具有功能强、体积小、轻便宜人、性能可靠、配套简单、流通能力,特别适合于介质是粘稠,含颗粒,纤维性质的场合。目前该阀广泛应用于食品、环保、轻工、石油、造纸、化工教学和科研设备、电力等行业的工业自动控制系统中。
Q941F电动法兰球阀适用于两位切断、调节的场合。电动开关型球阀阀与执行机构的连接采用直连方式,电动执行机构内置伺服系统,无须另配伺服放大器,输入4-20mA信号及220VAC电源即可控制运转。具有连线简单,结构紧凑、尺寸小、重量轻、阻力小、动作稳定可靠等优点。
Q941F电动法兰球阀工作原理:
Q941F电动法兰球阀以DC24V、AC220V或AC380V电源电压作动力,直接接受统一标准信号(4-20mA DC、0-10mA DC或1-5V DC、0-10V DC),将此转变成与输入信号相对应的位移,以角度位移(0~90º)运动,改变球芯的旋转开度,因此一定的输入信号对应一定的位置开度,实现比例调节动作。(二位开关式接受DC24V、AC220V或AC380V电源电压作动力,通过电机正反转实现开关动作,并同时输出开关阀位指示信号)。
Q941F电动法兰球阀产品特点:
1、安装简便,能以任意方向安装于管道中的任意部位。
2、精小型电动执行器有多种电源可供选择,更有防爆电装。
3、阀体内通道平整光滑,可以输送粘性流体、浆液以及固体颗粒。
4、直连方式,电动执行机构内置伺服系统,无须另配伺服放大器。
5、球阀和电动执行器之间无支架连接,一体化的外型结构紧凑,减少设备空间。
6、密封材料为聚四氟乙烯等,具有良好的自润滑性,与球体的摩擦损小,故球阀的使用寿命长。
Q941F电动法兰球阀主要技术参数:
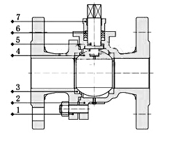
1、阀体
| 阀体形式 | 直通铸造阀 |
| 公称通径 | DN15~300mm |
| 公称压力 | PN1.6、2.5、4.0、6.4 MPa;ANSI 150、300LB ;JIS 10、20、30K |
| 法兰标准 | JIS、ANSI、GB、JB、HG等 |
| 连接形式 | 法兰式、焊接式、螺纹式 |
| 阀盖形式 | 一体式 |
| 压盖型式 | 压板压紧式 |
| 密封填料 | V型聚四氟乙烯填料、柔性石墨填料等 |
2、阀内件
3、执行机构
| 执行器型号 | DSR、3810R、DZW、HQ、PSQ |
| 主要技术参数 | 电源电压:220V/50Hz、380V/50Hz、输入信号:4-20mA或1-5V·DC、输出信号:4-20mA·DC |
| 防护等级:相当IP65(或IP67)、隔爆标志:ExdⅡBT4、手操功能:手柄 |
| 环境温度:-25~+70℃、环境湿度:≤95% |
Q941F电动法兰球阀主要性能指标:
| 公称通径 DN(mm) | 15 | 20 | 25 | 32 | 40 | 50 | 65 | 80 | 100 | 125 | 150 | 200 | 250 | 300 |
| 额定流量系数KV | 21 | 38 | 72 | 112 | 170 | 273 | 384 | 512 | 940 | 1452 | 2222 | 3589 | 5128 | 7359 |
| 允许压差(MPa) | ≤公称压力 |
| 动作范围 | 0~90°、0~360° |
| 泄露量Q | 按GB/T4213-92,小于额定KV0.01% |
| 基本误差 | ±1% |
| 回差 | ±1% |
| 死区 | ≤1% |
| 可调范围 | 250:1 | 350:1 |
Q941F电动法兰球阀主要零件材料:
| 1 | 左阀体 | WCB、CF8、CF8M、CF3M |  |
| 2 | 右阀体 | WCB、CF8、CF8M、CF3M |
| 3 | 阀座 | PEFE、PPL、304、316 |
| 4 | 球体 | 2Cr13、304、316 |
| 5 | 阀杆 | 2Cr13、304、316 |
| 6 | 密封填料 | PTFE/柔性石墨 |
| 7 | 填料压盖 | WCB、CF8、CF8M、CF3M |
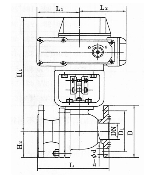
Q941F电动法兰球阀主要外形及连接尺寸: | 公称通径 DN(mm) | 15 | 20 | 25 | 32 | 40 | 50 | 65 | 80 | 100 | 125 | 150 | 200 | 250 | 300 |
| L | 130 | 140 | 150 | 165 | 180 | 200 | 220 | 250 | 280 | 320 | 360 | 400 | 630 | 750 |
| H | 44.5 | 49 | 55 | 65 | 65 | 75 | 90 | 95 | 115 | 127 | 140 | 172.5 | 310 | 350 |
| H1 | 根据所配执行机构而定 |
| D | 95 | 105 | 115 | 140 | 150 | 165 | 185 | 200 | 220 | 250 | 285 | 340 | 405 | 460 |
| D1 | 65 | 75 | 85 | 100 | 110 | 125 | 145 | 160 | 180 | 210 | 240 | 295 | 355 | 410 |
| D2 | 46 | 56 | 65 | 76 | 84 | 99 | 118 | 132 | 156 | 184 | 211 | 266 | 319 | 370 |
| n-φd | 4-14 | 4-14 | 4-14 | 4-18 | 4-18 | 4-18 | 4-18 | 8-18 | 8-18 | 8-18 | 8-22 | 12-22 | 12-26 | 12-26 |
| A、A1 | 根据阀门所需力矩而定,配置机型不同,外形尺寸也不相同 |
注:以上参数均以国标PN1.6MPa为准,其他压力等级请咨询我司技术部,表中尺寸为不带标准附件数据,另由于产
声明:我公司全力支持关于《中华人民共和国广告法》实施的"极限化违禁词"相关规定,且已竭力规避使用相关"违禁词"等极限化词汇,如果还有"极限化违禁词"用在我公司网站内,我公司声明其全部失效。本声明在我公司网站的所有页面内均有效,所有访问我公司网站的人员、客户均表示默认此内容,不支持任何以"极限用语、极限词、广告违禁词"等为借口或理由来投诉我公司违反《中华人民共和国广告法》或《新广告法》等相关法律,以及以此来索要赔偿等的行为。感谢您的配合与支持,谢谢!